uitbreiding woonhuis Amersfoort
De vraag is meer ruimte in een hoekhuis, zowel op de begane grond én op de verdieping.
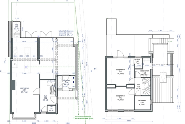
De kelder is gesitueerd achter de bestaande uitbouwen in de tuin. De bestaande achteruitbouwen blijven bestaan maar krijgen wel een nieuwe pui die doorloopt in de nieuwe zijuitbouw.
De zijuitbouw krijgt een kap. De hellingshoek van de kap is gelijk aan de kap van het hoofdgebouw. Ook de detaillering en materialisering van deze zijuitbouw is gelijk aan het hoofdgebouw.
Om de zijuitbouw met de kap en de achteruitbouwen met de platte daken mooi te verbinden én om gebruik te maken van de weglopende lijn van het kavel zit er in de zijuitbouw een kleine sprong.
In de zijuitbouw komt de woonkamer en een kleine bijkeuken. De oude woonkamer wordt de eetkamer met keuken.
Op de verdieping is de kleine zijkamer vergroot met de ruimte onder de kap. Hiervoor wordt aan de achterzijde een dakkapel geplaatst.
tijd
oplevering juli 2014
Verbouwing van hoekhuis, volledige opdracht tot en met oplevering.